Sjekk hva arkitektene gjorde med det trange og mørke huset

Det gamle murhuset fra 1932 fikk et ultramoderne tilbygg som forandret hele huset.

LYSBOKS: Det gamle murhuset har blitt mye lysere og mer funksjonelt etter at man fikk laget det nye tilbygget.
Publisert Sist oppdatert

Det finnes mange flotte eksempler på hvordan gamle bygg har fått nytt liv som noe annet enn det de i utgangspunktet var tenkt til å være. Overalt i verdens store byer tenker man både nytt og kreativt når det gjelder å få utnyttet allerede eksisterende bygg til nye boliger.

Gamle bygg og hus kan absolutt gjøres både større og mer praktiske om man bygger på. Mange er redde for å lage et moderne tilbygg på et gammelt hus, og er redd hele boligens karakter skal forringes i det man introduserer arkitektur fra en annen og nyere tidsepoke. Men har man litt is i magen, kan resultatet blir både spennende og unikt.

Det er ifølge design- og arkitekturnettstedet Designboom dette huset i Nederland et ypperlig eksempel på.

Ville ha mer lys inn i huset

Det gamle murhuset som ligger i Bentveld, en liten landsby som ligger mellom den nederlandske byen Harleem og Nordsjøkysten, var opprinnelig bygget i 1932. For eierne var det største problemet at det på innsiden av huset fremsto som både trangt og også nokså mørkt.

- Det var denne utfordringen de kom til oss med, forklarer arkitekt Jacco van Wengerden hos BaksvanWengerden Architecten i Amserdam til nettstedet Designboom.

- På grunnflaten av huset eksisterte det mange rom, og derfor mange vegger, som bidro til at hele etasjen føltes både litt klaustrofobisk og nokså mørk.

DRISTIG MØTE: Det gamle murhuset fikk et tilbygg i hvit betong. Spennende kontrast sier eierne.

Arkitekten forklarer at måten huset var satt sammen og delt opp på i 1932, var svært typisk for tidsepoken det ble bygget i.

- Det var svært vanlig at man delte opp rom etter funksjon, og det var ikke snakk om at det skulle være åpenhet eller et glidende skille mellom de ulike rommene. Her var ideen klar: Dører mellom alle rom, og funksjoner som foregikk i et rom, skulle holdes innefor dette rommets fire vegger, forklarer van Wengerden.

Resultatet var at huset føltes mindre enn det i realiteten var.

- Huset er svært like mange andre her i området, forklarer arkitekten.

- Det er nesten laget som en prototyp på hvordan slike hus skulle se ut den gangen, med skråtak, overheng på sidene av huset og solide materialer, som i dette tilfellet hvor man hadde bygget i rød murstein.

Fjernet innvendige vegger

Arkitekten forklarer at noe av det første som ble gjort i dette tilfellet, var at man fjernet det meste som var av innvendige vegger i huset første etasje.

- På den måten ble huset gjort mye lysere og mer åpent, sier van Wengerden til arkitekturnettstedet Arch Daily om prosjektet de har kalt SH House.

ÅPNET OPP: Hele første etasje ble åpnet opp, slik at man har fullt utsyn mot hagen fra hele etasjen.

- Den åpne planløsningen gjorde umiddelbart at blikket og fokuset ble trukket mot den grønne store hagen utenfor, noe vi hadde tenkt til å utnytte enda mer ved å lage et tilbygg til det originale huset.

Tilbygg i hvit betong

For å tilføre enda mer rom og lys inn til det gamle murhuset, tegnet arkitektene inn et tilbygg som skulle strekke førsteetasjen enda lenger utover i hagen.

- Designet vi kom opp med var et tilbygg som binder sammen inne og ute på en helt ny måte, forklarer arkitekt Gijs Baks hos BaksvanWengerden til Arch Daily.

- At vi endte på å benytte oss av betong som materiale var av den grunn at vi likte samspillet mellom den gamle mursteinen i den originale delen av bakveggen mot den mer moderne og lysere betongen.

Skrått tilbygg spiller på takets form

Det nye en-etasje høye tilbygget er festet sammen med det originale mursteinbygget på baksiden av boligen. Her åpner nå store glassdører seg direkte ut mot hagen utenfor.

GLASSVEGG: Bare en store glassvegg skiller mellom ute og inne i dette huset.
EKSPERTHJELP: Eierne av den gamle murvillaen fikk leiet inn arkitektene fra BaksvanWengerden Architecten for å få laget et smartere hus.

- Tilbygget skrår seg utover jo nærmere det kommer bakken, forklarer Baks.

- Grunnen til at vi endte på denne utformingen av det nye tilbygget, var at vi ville det skulle kommunisere og snakke med det gamle huset. Ved å skrå veggene følte vi at det ble et samspill mellom det originale skrå taket på huset, og det nye tilbygget.

Fra hagen ser tilbygget nærmest trekantaktig ut.

- Fra forsiden ser huset fortsatt originalt ut, forklarer arkitekten.

- Mens om man ser det fra hagesiden, ser man at det nye tilbygget har gitt den gamle boligen en ny dimensjon på arkitekturfronten, og et helt nytt liv.

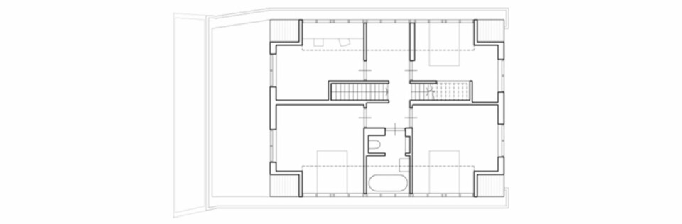
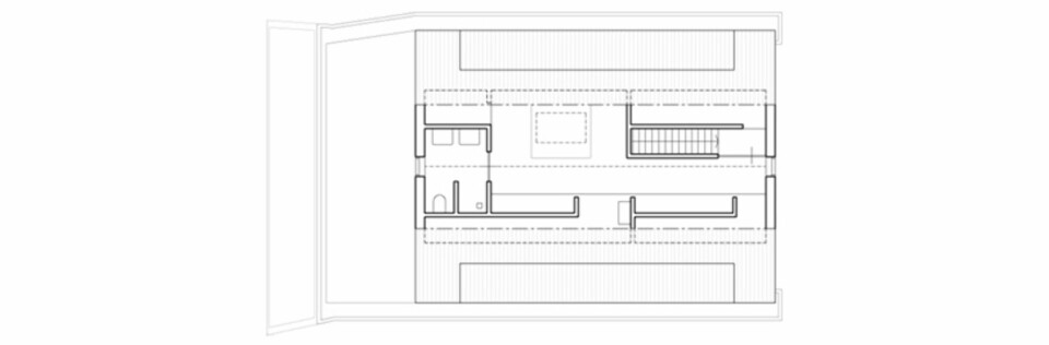
Trappen knytter huset sammen

Det var ikke bare fjerning av vegger i første etasje som ble gjort i et forsøk på å gjøre huset mer åpent og praktisk, avslører arkitektene.

- Den nye trappen som ble satt inn fungerer som ryggraden i huset, forklarer van Wengerden.

SKRÅVEGG: Tilbygget skråner forsiktig utover, noe som skal korrenspondere med de originale skrå takene på huset ifølge arkitektene.
LYSER OPP: Eierne av dette huset utenfor Haag i Nederland har fått et mye mer funksjonelt hjem etter at man fikk laget det nye tilbygget.

- Den forbinder nå husets andre etasje og loftet med førsteetasjen, og er et moderne innslag i interiøret.

Trappen, som er bygget inn i en "kasse" mellom bokhylle og et lite toalett i første etasje, tilføyer nok et moderne innslag til interiøret.

- Det samme gjør møblene og den fritthengende peisen, forklarer arkitekten.

- Sammen med tilbygget som fyller huset med lys, kan man si at møtet mellom det gamle murhuset og de nye moderne elementene har vært svært suksessfullt.

Les også:

Dette sjekker Sinnasnekker'n på visning

Sjekk alle de kule interiørbildene!

Nedlagt kirke ble designerhus

SILER INN LYS: Tilbygget med sitt store glassvindy fyller huset med lys.
TEGNING: Slik gjorde arkitektene.
UNIKT: Huset som originalt er fra 1932 har fått nytt liv.

I dette huset lønner det seg ikke å være blyg