Se den moderne hytta på Kvamskogen inspirert av tradisjonell byggeskikk

Både form og funksjon stemte. Hytta på Kvamskogen har nå blitt en kjærkommen vitamininnsprøyting.

FINE KONTRASTER: Mot den blå himmelen og alt det hvite fremmes detaljene på denne hytta ekstra godt. Formen er stram og minimalistisk, men byggestilen er tradisjonell, og under snøen er det torvtak.

Oppe i lia blant de øverste hyttene i feltet har ekteparet utsyn over Furedalen på Kvamskogen. Hit har bergensere valfartet i lange tider. Kanskje ikke så rart, med nærheten til byen. I underkant av en time skiller Kvamskogen fra Bergen by med bil i retning Voss. Terrenget opp i høyden er kupert og variert, her er gode forhold for vinterlige aktiviteter.

Etter en lang arbeidsuke synes hytteeierne Randi Sivertsen og Jan Johansen at det er skjønt å stikke til fjells. Når bilen parkeres foran hytta, våkner man virkelig fra bildøsen. Oransje flater og vinduskarmer er visuelt oppkvikkende.

- Vi var veldig bevisste på hva slags hytte vi ville ha, og ingen ferdighytter kunne helt tilfredsstille våre ønsker. Derfor ble det naturlig å kontakte arkitekt. Vår ønskeliste til arkitekt Morten Ramm Salbu hadde blant annet disse punktene; tett kontakt med omgivelsene gjennom store vindusflater, en overbygget terrasse og torv på taket.

NATURLIG NÆRHET: Når man går inn i stuen i denne hytta, oppnås umiddelbar kontakt med naturen utenfor. Oransje karmer sørger for å fremheve og ramme inn det. Eierne har valgt en frisk fargekombinasjon av grønt og oransje i interiøret. Fliser er trukket gjennom stuen fra terrassedøren til entreen, så det er mulig å gå gjennom hytta med skoene på, uten å skade parketten. Peisen kan vris rundt.
FRISKE FARGER: Eierne av denne hytta har valgt en frisk fargekombinasjon av grønt og oransje i interiøret.

Sol og utsikt

Etter at arkitekten tok noen få turer opp på tomta for å se hvordan terrasse og vinduer skulle stå i forhold til sol og utsikt, kom formen på plass.

- Hans erfaring ble avgjørende for at vi tok en rask beslutning, forteller Randi.

Arkitektens utfordring var å lage en moderne hytte tuftet på tradisjonell byggeskikk, uten at det ble nostalgisk romantikk. Løsningen ble å kombinere tjærebeiset malmfuru og torvtak med en stram og minimalistisk form. Uttrykket ble dermed moderne, mens valget av materialer var i harmoni med omgivelsene og de mer tradisjonelle hyttene i området.

EN BOKS I BOKSEN: Arkitektens motvilje mot takutstikk resulterte i en smart svalgang. Praktisk, siden snøen finner et annet sted å legge seg enn foran døra.
LUN KOSEKROK: Dette er et fint sted å slenge seg nedpå etter en skitur, eller etter middag. Under putene er det lagringsplass. Eierne av denne hytta har valgt friske farger som oransje og grønt i interiøret.

Hytta har fått en praktisk svalgang som sparer paret for mange spadetak foran døren når snøføyken har stått på.

Godt utstyrt

De innrømmer gjerne at det for dem er viktig med gode fasiliteter, også på hytta. Her er de nesten bedre utstyrt enn hjemme. Siden de begge ofte har lange arbeidsdager, tar de seg gjerne fri en fredag for å kunne bruke mer tid på hytta når de først er der.

HERLIG ARKITEKTUR: Med vestlandskledning av 100 % malmfuru, innsatt med tjærebeis har hytta fått et solid skall. På taket er det torv og innvendig kledning i hovedsak malte gipsplater. Fliser på bad. Vinduer og vinduskarmer er i treverk innvendig og utvendig er det treverk kledd med aluminium. Byggeår: 2012. Størrelse 90 m². Arkitekt: Ramm Salbu Arkitekter ved Morten Ramm Salbu og Bjørgvin H. Gunnarson. Fasiliteter er innlagt strøm og vann.
TRAPP TIL HEMSEN: Trappen har Jan selv sveiset, og et gelender skal tilpasses. I bakkant befinner det seg to soverom med lav takhøyde. Takhøyden fra stuegulvet strekker seg til 5,5 meter.

- Vi vil at den skal være utstyrt slik at vi ikke trenger å pakke for en tur på fjellet, kun svinge innom butikken for mat, forteller Randi. Fra terrassen er det bare å spenne på seg skiene og forsvinne opp i lia ovenfor hytta.

Friske farger

De vågale fargevalgene bunner i et ønske om omgivelser som virker oppkvikkende for øyet. Knallgrønt og oransje fungerer som en visuell vitamininnsprøytning for humøret etter en lang og hektisk arbeidsuke.

SNERTEN LØSNING: Leselampen fra ISØ Elektrikk er innebygget i veggen, fri for synlige ledninger. En smart løsning hvis en vil sove når den andre leser. Montert av Fagelektriker i Bergen. Pute fra Hjem, kjære hjem.
VELUTSTYRT: Kjøkkenet på denne hytta er nesten bedre utstyrt enn hjemme. Innredning fra Ikea. Hvitevarer er selvimportert fra Danmark, Lavpris Koekken.

- Men den største triumfen var definitivt å se hvor fin utsikt vi fikk over Kvamskogen, forteller Jan. Et godt liv på hytta for oss er å komme opp en fredag etter en lang uke med mye jobbing, og bare nyte stillheten i godstolen med en god rødvin om kvelden. For så å stå opp tidlig neste morgen og få seg en lang tur.

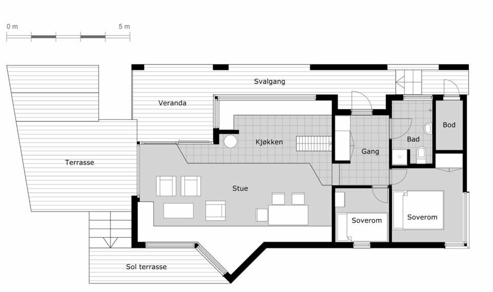
Plantegning

Les mer:

Drømmehytta laftet Gunnhild selv

Stor guide til smarte annekser

Slik legger du heltregulv på hytta