Herfra ser du åtte av ti topper over 2000 meter i Rondane

Sjekk den fantastiske utsikten fra Kari Rudis hytte i Folldal.

FANTASTISK UTSIKT: Det er ikke vanskelig å skjønne hvorfor Per og Kari Rudi falt for Folldal og Rondasyn hyttegrend. Fra terrassen og sofaen i stua er det mulig å nyte utsikten over Rondanemassivet. FOTO: Sveinung Bråthen
Publisert Sist oppdatert

I enden av Nasjonal turistvei Rondane ligger Folldal. Et tettsted omkranset av mektige fjell og vakre seterdaler.

Øverst i denne bygda har Kari og Per Rudi bygget sitt hytteparadis med en utsikt som tar pusten fra de fleste.

Herfra ser de åtte av de ti toppene som er over 2000 meter i Rondane, og hele den fantastiske fjellheimen rundt.

- Vi falt for landskapet, som er en voldsom kontrast til Finnskogen, der vi bor. Her er det helt annerledes enn hjemme, og det er nettopp denne annerledesheten vi setter så stor pris på, sier Kari.

Hun har selv vært med på å tegne hytta sammen med ingeniør Arild Plassen. Og tømrermester Reidar Morken sto for byggingen og mange gode ideer og løsninger på hytta.

Respekt for omgivelsene

Hytta, som sto ferdig i 2007, er stedstilpasset i både materialvalg og fargevalg. Hytteeierne ville ha en bygning som underordnet seg landskapet, og som hvisket heller enn å rope.

MORGENSTEMNING: Det er spektakulære scener som utspiller seg en vintermorgen i hyttefeltet Rondasyn i Folldal. FOTO: Sveinung Bråthen
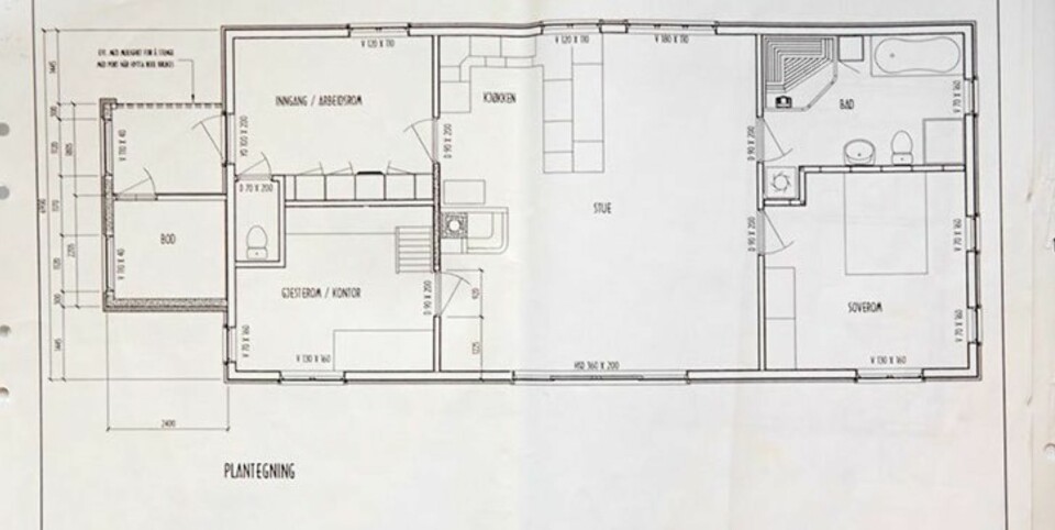
NORGES TAK: Byggeår: 2007. Størrelse: 100 m². Eiere: Kari og Per Rudi. Rominndeling: Vindfang, gang, toalett, kjøkken med åpen løsning, stue, spisestue, bad, to soverom og hems med en soveplass. Fasiliteter: Strøm og innlagt vann. FOTO: Sveinung Bråthen
SOLID TAKHØYDE: Det flotte åstaket har 23 store stokker. Peisen er tørrmurt i det som kalles råkopp av oppdalsskifer. Innvendig kledning er Skjåkpanel og gulvet er fra Norrlandsgulv. Ovnen til høyre i bildeter fra Austroflamm. FOTO: Sveinung Bråthen

«Hyggelig enkelhet» var et begrep de hadde som arbeidstittel. Tilbakemeldingene har vært at hytta er gjennomført, flott og ujålete.

Naturinspirert hytte

- Vi er godt fornøyd med resultatet. Vi trives utmerket her oppe, og det er gøy å høre at andre også liker hytta, sier Kari, som er naturdekoratør og en ivrig hytteblogger. Hun elsker livet med mose, lav, lyng, kvister og villblomster. Derfor er det kanskje ikke så rart at innredningen er naturinspirert i både materialer og farger.

Utvendig er det utkraget grunnmur, pipe og inngangsparti i oppdalsskifer, mens taket har ottaskifer i ruter med brunlige innslag. Den utvendige kledningen er i malment furu. Det er brukt både ottaskifer og oppdalsskifer, fordi hytta ligger midt imellom Otta og Oppdal. Takrenner og beslag er i kobber og harmonerer flott med kledningen.

FLOTT KJØKKEN: Kjøkkenet har Kari tegnet selv, men det er Atico som har laget det. Legg merke til kobberlampene over kjøkkenbenken. Kobber går igjen i takrenner, utelamper og altså på kjøkkenet. En vedhylle som en integrert del av kjøkkeninnredningen er både praktisk og dekorativt. FOTO: Sveinung Bråthen
HYGGELIG SPISESTUE: Spisebordet er kjøpt brukt. Stolene er arvet, men har fått nye stoltrekk som harmonerer med bordet. FOTO: Sveinung Bråthen
KOSELIG GJESTEROM: Det er flere soveplasser på hytta, og fullt mulig å ta imot venner på overnatting. FOTO: Sveinung Bråthen

Tradisjonell byggeskikk

Innvendig har det handlet om å skape gode stemninger, praktiske løsninger og en avslappet atmosfære. Og de ville ha mye av den flotte høyfjellsnaturen inn, også når det gjelder farger.

Den åpne, høyreiste gruepeisen skaper hygge, og er en av favorittene i hytta, som er bygget i moderne stavlaft. Arkitektonisk er det altså elementer fra både ny og gammel byggeskikk. De store vindusflatene i midtpartiet representerer et litt mer moderne uttrykk, uten at det blir for voldsomt.

- I nye bygg synes vi det er viktig å bruke noe gammelt, slik at atmosfæren ikke blir steril. Vi har noen gamle, gjerne nyoppussede, møbler i alle rom. I sum består hytteinteriøret av bruktkjøpt og spesiallagde løsninger, sier Kari.

ROMSLIG SOVEROM: Det er god takhøyde og romslig plass på hovedsoverommet. FOTO: Sveinung Bråthen
EN VEGG AV SKI: I gangen har Kari og Per Rudi en større skisamling, som skjermer brannapparater, brannteppe og andre hjelpemidler som ikke er like fine å se på. FOTO: Sveinung Bråthen

For å fremheve taket, valgte de en stor lysekrone på over 110 cm i høyden, noe som gir en hyggelig stemning om kvelden. De tykke panelene i stuen og på soverommene er malt i grått og grønt. I gangen er det malt med okergult.

Ikke prangende

Det er tregulv fra Norrlansgulv i alle rom, bortsett fra gangen som er lagt med ottaskifer. De har også ønsket å kunne bruke hytta dersom de skulle bli dårlig til bens, og den har dermed fått en universell utforming. Rullestol- og rullatorbrukere kan komme inn via en oppbygget rullestolrampe i stein. Når Kari leier ut hytta, har gjestene satt pris på nettopp denne muligheten. Soverommet er derfor også romslig, av samme årsak.

- Hytta er kanskje ikke den mest fasjonable og prangende, men et godt sted å være, både ute og inne, sier Kari – som er blitt forelsket i Folldal og Rondanemassivet.

HELT PÅ HØYDEN: Hytta har en romslig tomt, og det er langt til nærmeste hyttenabo. Utvendig kledning er malmfuru. Taket: Ottaskifer. FOTO: Sveinung Bråthen
VAKKER KOMBINASJON: Takrenner og beslag er i kobber, og harmonerer flott med kledningen og oppdalsskiferen. FOTO: Sveinung Bråthen
BERGTATT AV NATUREN: Kari Rudi er forelsket i utsikten. Hun synes det er vakkert når de mektige fjelltoppene åpenbarer seg på solfylte dager. FOTO: Sveinung Bråthen

Her er fargekodene Kari har brukt:

  • Vegger gjesterom og stue: S2010-G90Y Lister: S1510-G90Y
  • Kjøkkeninnredning: S2010-G90Y og S1510-G90Y Har et strøk gulvlakk ytterst.
  • Vegg soverom: S2005-Y10R
  • Vinduer utvendig og innvendig: 3606-Y29R
  • Vegg gang: S2040-Y30R
  • Utvendig beis: Jotun 638 Setergrå Tjeralin

Vil du lese mer om hyttelivet til Kari Rudi, kan du følge henne på bloggen: fjellhytta.blogspot.no