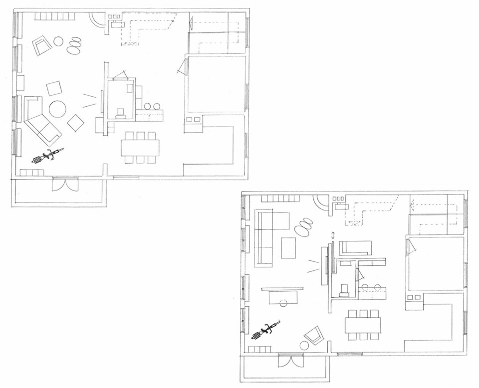
Slik så stuen ut før
De fleste river ned vegger for å åpne opp. Denne familien gikk motsatt vei.


De fleste river ned vegger for å åpne opp, men hvorfor ikke gå andre veien?
Det gjorde nemlig Eva Tveit og familien.
Familiens utfordring
De hadde problemer med å møblere stuen og hallen, fordi rommene var så åpne. Familien ønsket seg også soner for flere anledninger – rett og slett en ny stue.
- Vi skulle også gjerne hatt soner for flere anledninger, sa Tveit til Bonytt før stuen ble totalforandret.
Familien søkte nemlig om hjelp fra Bonytt-hjelpen, og fikk interiørarkitekt MNIL Bernt A. Pedersen hjem til seg for å oppfylle familiens ønske om en mer oppdelt stue.
Interiørarkitektens løsning
Det vanlige er å åpne opp rommene, du gikk motsatt vei, hvorfor?
- Her var stuen, hallen og kjøkkenet åpne rom. Inngangen til toalettet var i hallen, og hele arealet var vanskelig å møblere. Jeg flyttet døren til toalettet, og laget en vegg mot kjøkkenet, sier interiørarkitekten til Bonytt og fortsetter:
- Inn mot stuen installerte vi en skyvedør, og plutselig ble hallen et lunere rom. Familien kan skyve døren helt igjen slik at rommene blir adskilte ved behov.
Han sier videre at selve stuen var stor og luftig, en drøm for mange, men at beboerne synes den var vanskelig å møblere.
- Flotte enkeltmøbler forsvant i rommet. Ved å lage en lettvegg midt i rommet med åpning på begge sider, beholdt vi lysinnslippet fra vinduene. Dermed ble det et rom i rommet, og stuen ble langt lettere å møblere. Nå kommer også hver enkelt møbel mer til sin rett.
Trenden sier at det er ut med fondvegger, men du valgte å tapetsere én vegg?
- En tapetvegg kan endre rommets karakter totalt. Jeg valgte imidlertid å plassere det midt på veggen, et tapet trenger ikke legges fra hjørne til hjørne, du kan også velge å tapetsere ulike felter.
Artikkelen fortsetter under bildene.


Dette synes interiørstylistene
Interiørstylist Juni Hjartholm liker godt det ferdige resultatet til familien Tveit.

- Jeg synes interiørarkitekten har løst familiens behov godt, ved å dele opp rommet med skillevegger. Jeg likte aller best at han tok hensyn til lyset fra vinduene, slik at rommet fortsatt har et luftig preg.
Interiørstylist Rikke Bye-Andersen likte veldig godt skyvedøren – en genial måte å dele et rom på uten å sette opp en fastmontert dør.
- Jeg tror ikke folk tenker på å sette inn skyvedør lenger, og man tenker at det kanskje er litt 70-talls og utdatert – men jeg vil heller si det motsatte, og er veldig for slike løsninger, sier hun og legger til:
- Jeg liker også fondveggen bak tv-en, og liker at de tapetserte og ikke bare malte. Det er veldig fint å bruke forskjellige materialer og teksturer i samme rom, det gjør det veldig mer interessant og gjennomført med en gang.
Interiørarkitekten valgte å «gå mot strømmen» og sette opp skillevegger. Funket det for denne stuen?
- Absolutt. En familie har mange ulike behov. Når man kan tilfredstille flere, ved å dele opp et stort rom, blir hjemmet mer dynamisk og funksjonelt, sier Hjartholm.
- Store, luftige rom uten vegger er jo veldig lekkert, men kan være veldig vanskelig å innrede – og her virket det som den beste løsningen for familien som skulle bo der. Så jeg synes skilleveggen fungerte bra her, sier Bye-Andersen.


Blågrønn en hit blant nordmenn
Nordmenn elsker å pusse opp, og endrer stadig hjemmene sine. Men hva er stuetrendene akkurat nå?
Ifølge interiørstylist Hjartholm ønsker mange nordmenn seg en pusset murvegg, enten med murpuss eller kalkmaling.
- Noen av de hvite veggene males gjerne i en mørk, behagelig tone med helmatt maling, sier hun.
Bye-Andersen mener det virker som om folk tør litt mer, og at de ønsker farger.
- Jeg ser at duse blå- og grønnfarger er veldig i tiden nå, og jeg får stadig spørsmål om tips til akkurat disse fargene.
- Blågrønn har jo lenge vært en trend, og det virker som om det fortsatt er en stor hit hjemme hos det norske folket, og det er absolutt en veldig fin farge som er lett å kombinere med andre farger, legger hun til.
Ifølge Bye-Andersen funker den fint til grått og hvitt, og det er kult å sprite den opp med innslag av rødt, korall, gult og litt knæsjere blåfarger.
- Så jeg holder fortsatt en knapp på duse farger i grønt, blått og litt over i turkis - noe jeg også anbefaler mine kunder, sier hun.
Stuene blir mer loungeaktig
Også kjøkken og stue glir mer i hverandre. Det er ikke slik som før hvor man både kokkelerte og spiste på kjøkkenet, og så gikk ut i stuen for å hvile.
- Nå bruker vi mye av fritiden på å slappe av med å lage god mat, så dermed åpner mange opp mellom stue og kjøkken, og lar kjøkkenbenken krype inn i stuedelen, forteller Hjartholm og legger til:
- Det er heller ikke slik lenger, at når man har gjester, må maten være fiks ferdig. Matlagingen blir ofte en del av den sosiale sammenkomsten.
Også den typiske sofagruppen med sofa og lenestoler blir ofte byttet ut med en fleksibel, stor modulsofa.
- Denne kan settes sammen på utallige måter, og gjerne forlenges. Også lav, innebygget og flislagt peis i 70-tallsstil er populært, sier interiørstylisten.
Vi begynner også å gå mer bort fra parketten, og utforsker keramiske fliser og andre alternativer på gulvene.
- Disse trenger ikke samme vedlikehold. De fleste har gulvvarme, så kalde steingulv er ikke lenger et argument, sier Hjartholm.
Gardinene forsvinner mer og mer, og vi går heller for store vinduer med fine vindusrammer, store planter i og rundt vinduet for å lune.
- Trenger vi solskjerming, drar vi heller ned en rullgardin eller persienner, sier interiørstylisten og legger til:
- Alt i alt blir stuene mer loungeaktige, med lavere møbler, lav peis, store planter, puter på gulvet og store vinduer.
Søk 15 timers gratis interiørhjelp du også! Les mer på bonytt.no.