Slik bor du smart på liten plass
Camillas leilighet er bare 36 kvadratmeter, men lure løsninger gir god plass. Lær deg knepene!

Camilla Strøm (30) har hatt leiligheten på St. Hanshaugen i Oslo i sju år. At den bare gir 36 kvadratmeter boplass gjør ikke så mye når man bor alene og man i tillegg har innredet med smarte løsningen og er forsiktig med hva man slipper inn av møbler og interiør.
- Det sier seg selv at for mange ting i en liten leilighet ikke fungerer. Jeg har få møbler, det gir bedre gulvplass og større romfølelse, sier Camilla.

Hun har også holdt seg til lyse farger på vegger og møbler for å øke romfølelsen.

Det meste går i duse tonger fra grått og beige til sand og pudder.
Det store vinduet ut mot balkongen sørger også for godt med lys.
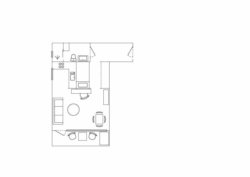
Leiligheten består av stue, kjøkken, bad og en sovealkove.
Det lille kjøkkenet hadde innredning fra 60-tallet. Det fikk bøte med livet en dag Camilla innså at praktisk var bedre enn kult.
Plasseffektivt
- Jeg likte det gamle kjøkkenet med skråstilte overskap og skyvedører, men det var ikke akkurat plasseffektivt, sier hun.
Isteden fikk hun montert et nytt, hvitt høyglanset kjøkken fra Ikea, og skvettsonen fikk nye fliser .
For Camilla gjaldt det å få plass til så mange skap som mulig på den lille plassen, så der standardskap ikke passet, fikk hun lurt in noen liggende vifteskap.
Også badet måtte moderniseres.

Nye fliser på vegger og gulv og en innebygd varmtvannsbereder gjorde susen for det bitte lille rommet.

- Jeg er veldig fornøyd. Badet er lite, men delikat og nesten som mitt eget, lille spa.
Når et lite rom skal dekke mange behov, er det viktig å skape sammenheng og et ryddig inntrykk.
Derfor har ikke Camilla høye bokhyller som er visuelt krevende, og hun er nøye med hva som kommer opp på veggene.
- Jeg fikk bokhyllen bygd på mål av en snekker. Den er inspirert av Terence Conran, men bygd i en størrelse som passer min stue, sier Camilla.
Camillas tips til deg med liten plass:
|
Planløsningen
Camillas leilighet ligger i en bygård på St. Hanshaugen i Oslo. Den har åpen løsning mellom kjøkken og stue.
Stuen består av en sofagruppe, en arbeidsplass og et lite bord som kan slås ut når hun får gjester.
Når du kommer inn i gangen ligger badet rett fram, og sengen har fått plass i en alkove i gangen på vei inn til stuen. I tillegg har hun en liten balkong med plass til både en liten sittegruppe og solseng.

Les også:

Slik pusset de opp det gamle trehuset